535 Bayfield Street Unit# 17 Barrie, Ontario L4M 4Z9
$24 Monthly
Insurance, Other, See Remarks
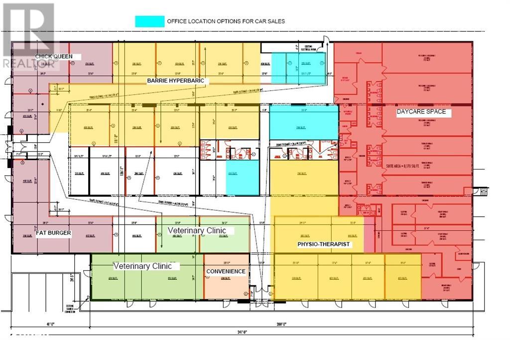
High Traffic Retail/Office Mall Style Space North Of Georgian Mall, Beside Tim Horton's. Only INTERIOR Mall spaces remaining with common access from the front and side entrances. Rental Rates Vary, Up To $30/Sf Depending On Size And Location. Plus Tmi Includes Utilities And Common Area Maintenance Of Common Area Washrooms And Hallways. Ideal Space For Any Kind Of Office Or Retail Use. Space Has Been Leased To 2 Fast Food Restaurants Fronting Onto Bayfield And Convenience And Physio. Located Adjacent To Tim Horton's With Hundreds Of Cars A Day Through The Lot. See Attached Plan. Any Number Of Units Can Be Combined To Accommodate Tenant Needs Up To About 6,000 Sf. (id:49320)
Property Details
| MLS® Number | 40355987 |
| Property Type | Retail |
| Amenities Near By | Public Transit, Schools, Shopping |
| Community Features | High Traffic Area, Community Centre |
Building
| Basement Type | None |
| Cooling Type | Central Air Conditioning |
| Exterior Finish | Stucco |
| Heating Fuel | Natural Gas |
| Heating Type | Forced Air |
| Stories Total | 1 |
| Size Exterior | 3000.0000 |
| Utility Water | Municipal Water |
Land
| Acreage | Yes |
| Land Amenities | Public Transit, Schools, Shopping |
| Sewer | Sanitary Sewer, Storm Sewer |
| Size Frontage | 250 Ft |
| Size Irregular | 3.4 |
| Size Total | 3.4 Ac |
| Size Total Text | 3.4 Ac |
| Zoning Description | C4 |
https://www.realtor.ca/real-estate/25117488/535-bayfield-street-unit-17-barrie
Broker of Record
(705) 726-3871
(705) 726-8260
47 Mills Rd. Unit: 6
Barrie, Ontario L4N 6H4
(705) 726-3871
(705) 726-8260
www.edlowerealestate.com/
Interested?
Contact us for more information











